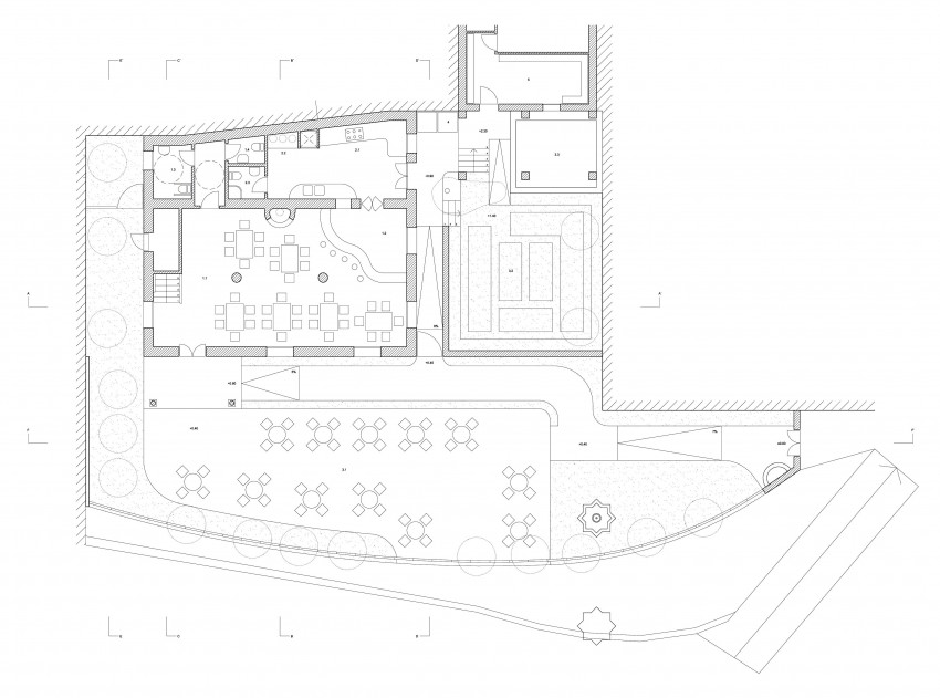
El presente proyecto queda ubicado en plena Alpujarra Alta, Granada. Fue diseñado en el año 2010. Basado en el tipo tradicional de la zona se realiza el diseño. Se usa la pizarra para muros y cubiertas así como la semejanza con el entorno construido del pueblo.
Se realiza el jardín exterior y se conecta con la huerta preexistente que servirá de abastecimiento al restaurante.
Based on the vernacular architecture from Alpujarra Alta, Granada, this project use slate stones for walls and roofs. A nice garden with a orchard lets the people enjoy the landscape



